地址:上海市閔行區疏影路1280號
傳真:021-54883445
郵箱:sales@sansitech.com
教室作為學生核心的學習場所,其照明環境的好壞直接影響學生的視力健康和學習質量。然而,我國很多中小學教室照明環境質量并不符合國家標準。照度、無黑板燈、色溫、顯指低、眩光、頻閃、藍光危害、燈具安裝不合理等教室照明問題普遍存在。

那么,理想的中小學教室照明環境應滿足哪些要求?按照國家標準委員會發布的《中小學校普通教室照明設計安裝衛生要求》(GB/T36876-2018)規定:
教室課桌面、黑板面照度優
教室課桌面維持平均照度不低于300lx,照度均勻度不低于0.7;教室黑板面應設置局部照明燈,黑板面維持平均照度不低于500lx,照度均勻度不低于0.8;照度均勻、寬敞明亮的教室能夠幫助教學活動順利開展,激發學習熱情。

色溫3300K~5300K,顯色指數≥80
教室宜采用3300K~5300K色溫的光源。否則,色溫過低,光線泛黃,學生易瞌睡;色溫過高,光線白,學生易興奮、疲勞,3300K~5300K色溫有助于穩定學生情緒,保持積極的學習狀態。
光源的顯色指數大于等于80,顯指越高,色彩越逼真,圖像越清晰,學生感受到的色彩就越豐富,發生色弱、色盲的幾率就越低。

教室統一眩光值(UGR)≤19
為了減少照明光源引起的直接眩光,教室照明不宜采用裸燈照明。否則,教室照明眩光值過高,光線直接進入人眼,將會引起眼睛刺痛,視力下降。
無藍光危害、無顯著頻閃
LED教室燈具需獲得藍光安全無危險等級以及光頻閃為“無顯著影響”。否則,學生長期在藍光超標和頻閃的照明環境中學習,會對視網膜造成不可逆的損傷,最終將影響學生身心健康和導致學習成績下降。

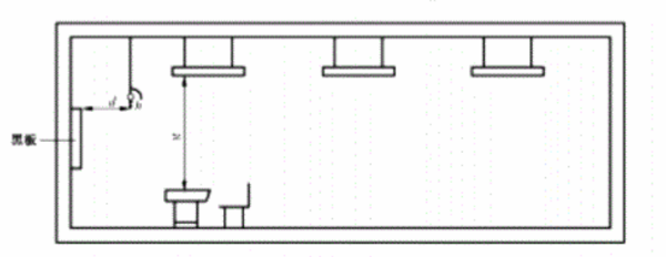
燈具采用吊桿安裝方式,距桌面高度≥1.7m
國標規定,教室燈具應采用吊桿安裝方式,并按教室縱向均勻分布,教室照明功率密度現行值不應大于11W/㎡,目標值應為9W/㎡。此外,根據學生座位視角,燈具距離課桌面的建議懸掛高度應大于等于1.7m,合理的光線距離可以帶來更加舒適的視覺體驗。

目前,隨著社會、國家對中小學視力健康的高度重視,越來越多符合國家標準的LED教室照明燈具被廣泛應用于學校照明改造項目中。以上海三思為例,27年始終專注于教室照明光環境研究,為中小學提供專業的教室照明解決方案,其反射式護眼教室燈和黑板燈設計高于國家標準。

• 照度>300lx、光線均勻、明亮干凈
• 色溫適中,輕松舒適
• 顯指>90、色彩逼真、畫面清晰
• 教室統一眩光值(UGR)≤16,無眩光、無顯著頻閃
• RG0豁免級無藍光危害
• 固定式吊桿安裝,高度靈活調節
• 電源正面熱插拔,維護便捷
• 支持多種智能調光系統,滿足教學要求
目前,三思教室照明燈具已覆蓋合肥市第八中學、上海市華東政法小學、西安市灃西第四學校等全國多個地區校園,打造了諸多精品健康教育照明案例。